Projekční činnost | EKOGREEN
Příprava projektové dokumentace a studií zahrad a veřejné zeleně. Služby zahradního architekta.
Studie a projekty zahrad a veřejné zeleně
Nabízíme zpracování projektové dokumentace studií, dendrologických průzkumů. Zpracování projektů krajinářských úprav a územních systémů ekologické stability, zprostředkování další projektové dokumentace podle konkrétních požadavků investora (projekty dětských hřišť, zahradní a parkové vybavenosti, apod.). Projektové dokumentace zpracováváme pro soukromý i veřejný sektor. Provádíme inženýring i autorský dozor v průběhu stavby. Zajišťujeme také odborné poradenství.
Postup při návrhu zahrady:
- Informační schůzka, kde se seznámíme s Vašimi představami, požadavky a nároky na zahradu a její pozdější údržbu. Následuje terénní průzkum a měření, zjistíme stav půdy, vláhové poměry, zdroje vody, přípojky a vše fotograficky zdokumentujeme. Ze společné diskuze vznikne zadání projektu a dle jeho rozsahu Vám zpracujeme a zašleme návrh ceny projektu.
- Na další schůzku připravíme studii řešení zahrady (stavební prvky, rozdělení v zónách, mobiliáře, prvky zahradní architektury, modelace terénu, členění záhonů a skladba rostlin). Zde dochází k úpravám dle připomínek klientů. Po schválení koncepce zákazníkem přikročíme k vytvoření projektu.
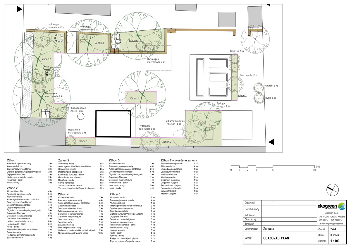
- Předání projektové dokumentace – textová a grafická část
Obsah projektu zahradnických úprav
Každý projekt zahradnických úprav by měl obsahovat:
- přehled vlastnických vztahů k dotčeným pozemkům, zákres všech podzemních inženýrských sítí (alespoň orientační, po dohodě s investorem i doplněný o ověřená stanoviska všech správců sítí)
- základní výkres v měřítku adekvátním řešenému území (zahrady obvykle 1 : 50, 1 : 100 nebo 1 : 200, veřejná prostranství, firemní areály apod. od 1 : 100 do 1 : 500), tento výkres musí obsahovat
- zřetelné dispoziční řešení (tj. jasně rozlišené zpevněné plochy, trávníky, výsadby...)
- zřetelně rozlišené stávající a nově navržené výsadby s případným plánem kácení a výběrem stávajících dřevin k ošetřování
- srozumitelnou legendu
- výkaz výměr (tj. podrobný seznam všech použitých materiálů a jmenovitý seznam rostlin s uvedením množství, druhu a jakosti, u rostlin též velikost při výsadbě), případně položkový rozpočet prací
- technickou zprávu s dostatečně podrobným a srozumitelným popisem technologie ošetřování stávající zeleně, zakládání nové zeleně
Podrobnější projekty mohou obsahovat např. samostatné situace současného stavu s inventarizací stávajících dřevin, samostatné návrhy pěstebních opatření ve stávajících porostech, detailní osazovací plány jednotlivých nových záhonů s přesným vytyčením jednotlivých rostlin při výsadbě, perspektivní pohledy a fotodokumentaci, samostatnou projektovou dokumentaci oprav a zřizování souvisejících technických prvků (chodníků, hřišť, osvětlení, drobných staveb apod.), u větších akcí rozdělení prací na etapy, u projektů veřejné zeleně členění podle zdroje financování, připravení podkladů pro žádosti o dotace, projednání se všemi dotčenými subjekty včetně státní správy apod.
Cena projektové dokumentace se stanovuje vždy individuálně. Na výši ceny za projekt má hlavní vliv náročnost zpracování, která se obvykle odvíjí od velikosti řešeného území, jeho členitosti a s tím související náročnosti na zpracování detailů a dále od požadavků na zpracování variantních řešení. Do ceny projektu dále patří i další související náklady (např. zaměření stávajícího stavu, cestovné, náklady spojené s případným projednáním na úřadech, je-li takové projednání třeba, kopírování vyhotovené dokumentace apod.). Ze společné diskuze vznikne zadání projektu a dle jeho rozsahu Vám zpracujeme a zašleme návrh ceny projektu.



